Palma Hotel | Unidade Artesão
Projeto Arquitetônico IV | 2023/2 UFRGS
Bruna Corrêa, Gabriela Fröhlich, Giovanna Zirbes e Guilherme Staub Barbosa
Bruna Corrêa, Gabriela Fröhlich, Giovanna Zirbes e Guilherme Staub Barbosa
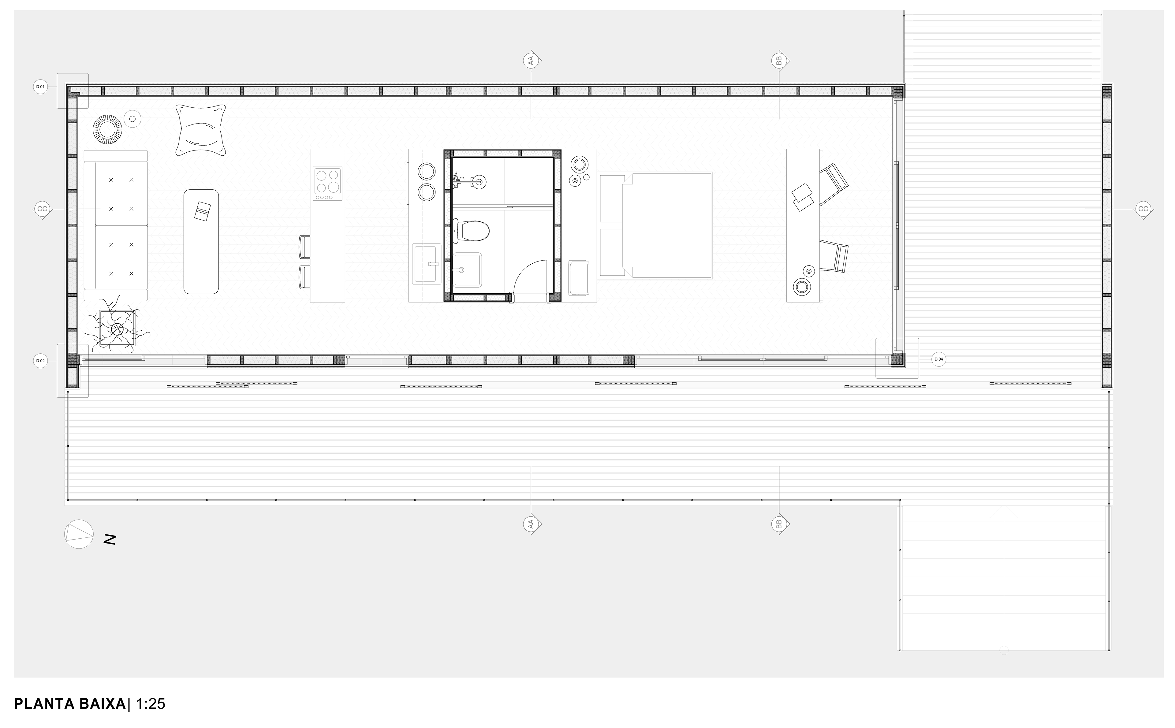
Localizado na fazenda Butiá, em Itapuã, Viamão, o projeto consiste em um hotel design, cujas unidades são cabanas contemporâneas construídas em woodframe. Projetou-se, em grupo, uma família de unidades, a partir das quais cada integrante desenvolveu um módulo, com ênfase no desenvolvimento técnico-construtivo do projeto.